Leave a Message

Thank you for your message. We will be in touch with you shortly.

See all photos
Whitney Ayer

5125 W 29th Avenue Unit: 6

$745,000 5125 W 29th Avenue Unit: 6, Denver, CO 80212
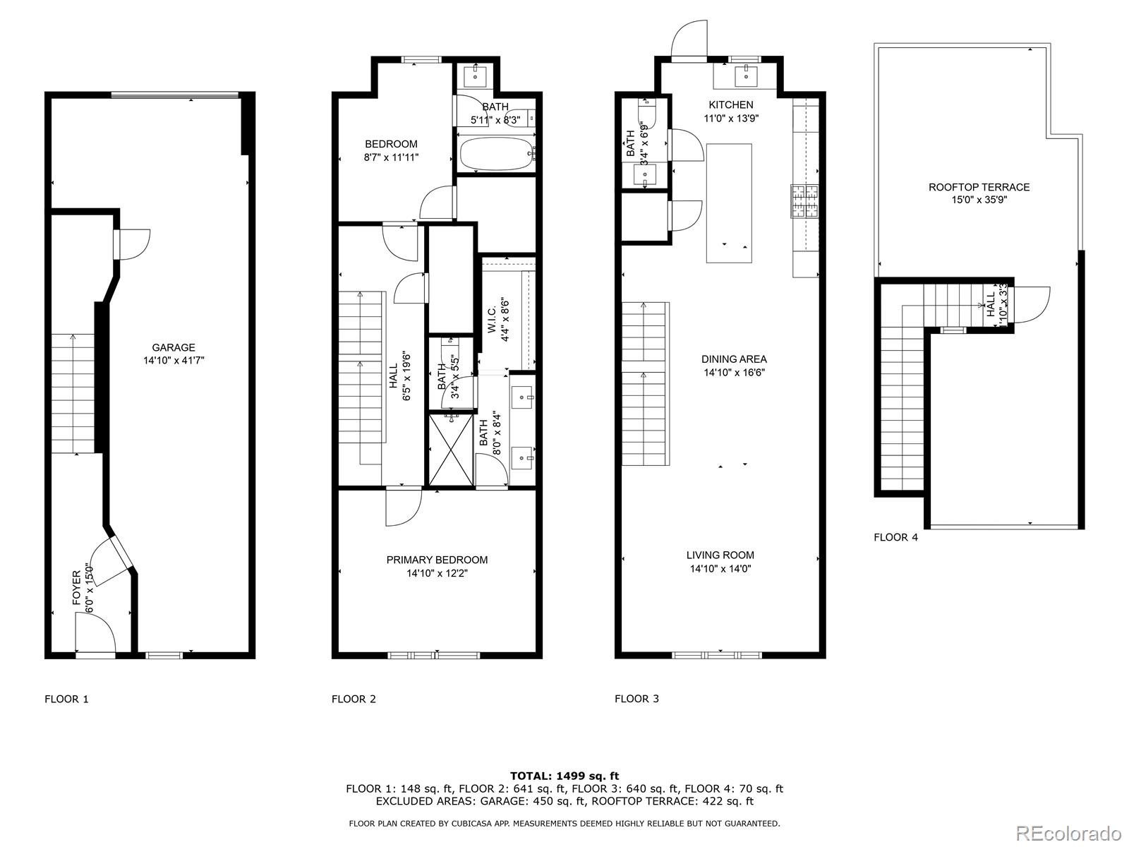
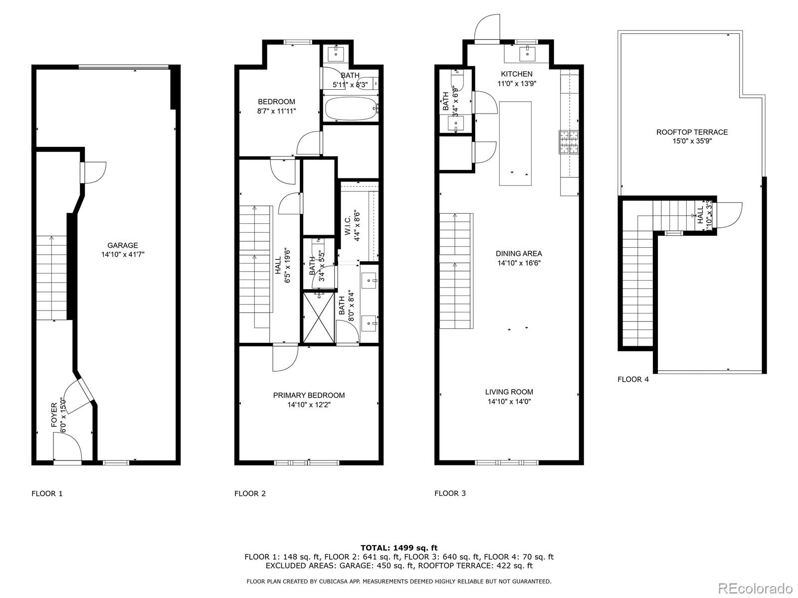
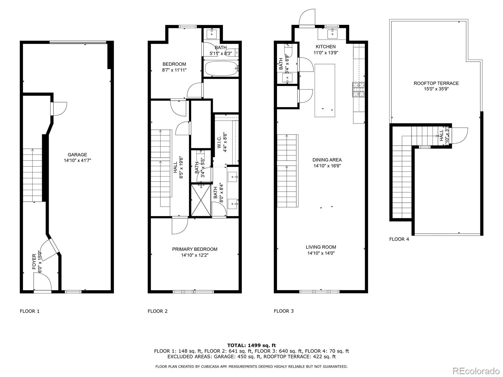
SELLER IS OFFERING A SELLER CONCESSION TO COVER BUYER'S CLOSING COSTS OR PURCHASE AN INTEREST RATE BUYDOWN ($5,000 VALUE). A rarity of its kind - this West Highlands townhome, located on the north side of Sloan's Lake is designed with extensive space, open concept, tall ceilings, floor to ceiling windows, and an unparalled luxury feel. With NO ASSOCIATION, this home provides freedom and affordability. Designed by the award-winning Sanzpont Architecture firm. This top-down living home is bathed in natural light, and breathtaking rooftop views of the mountains and downtown Denver--plus, the potential for a hot tub installation.

The open-concept, top floor features a chef's kitchen with high-end finishes: marble backsplash, stone waterfall island with bar seating, premium stainless steel appliances, gas stovetop, and a large pantry. The balcony directly off the kitchen is perfect for grilling, while a modern half bath adds convenience for guests. The second floor boasts two incredibly spacious bedrooms, each with en-suite bathrooms and walk-in closets. Convert the guest bedroom into your at-home office, as well.

Additional features include real light oak hardwood floors, designer tile bathrooms, heated foyer/mudroom with space heater, a tandem two-car garage with epoxy flooring and storage, and private alley access.

The spacious rooftop deck, spanning the entire footprint has a private north facing dining area, and a south-facing space for lounging with lake, city, and mountain views.

Ideally located near Sloan's Lake, Rise and Shine Biscuit Co, Joyride Brewing, and Edgewater, with easy access to Tennyson, the Highlands, and I-70. No HOA, but a Party Wall Agreement fee averaging less than $75/month which includes landscaping, seperately metered water bill, and snow removal. Don't miss this opportunity --schedule your tour today!
  • Active Under Contract
    Status
  • 2
    Bedrooms
  • 3
    Bathrooms
  • 2017
    Year Built
  • 1,608 Sq.Ft.
    Living Area

Features & Amenities

Area & Lot

  • Status: Active Under Contract
  • Living Space: 1,608 Sq.Ft.
  • Total Area: 1,608 Sq.Ft.
  • Lot Size: 1,026 Sq.Ft.
  • MLS® ID: 3341795
  • Type: Townhouse
  • Year Built: 2017
  • Neighborhood: Denver
  • View Description: City, Lake, Mountain(s)
  • Elementary School:Edison
  • Middle School: Skinner
  • High School: North
  • School District: Denver 1

Interior

  • Total Bedrooms: 2
  • Total Bathrooms: 3
  • Full Bathrooms: 1
  • Three Quarter Bathrooms: 1
  • Half Bathrooms: 1
  • Laundry Room: In Unit
  • Flooring: Tile, Wood
  • Appliances: Cooktop, Dishwasher, Disposal, Dryer, Freezer, Microwave, Oven, Range Hood, Refrigerator, Washer
  • Other Interior Features: Eat-in Kitchen, Entrance Foyer, High Ceilings, Kitchen Island, Open Floorplan, Pantry, Quartz Counters, Smart Thermostat, Walk-In Closet(s)

Exterior & Building

  • Stories: 3
  • Garage Space: 2.0
  • Water Source: Public
  • Utilities: Electricity Connected, Internet Access (Wired), Natural Gas Connected
  • Roof: Shingle
  • Parking: Finished Garage, Floor Coating, Storage, Tandem
  • Heat Type: Forced Air
  • Air Conditioning: Central Air
  • Sewer: Public Sewer
  • Substructure: Slab
  • Security Features: Carbon Monoxide Detector(s), Smoke Detector(s), Video Doorbell

Financial

  • Sales Price: $745,000
  • Real Estate Tax: $4,026/yr
  • Zoning: U-MX-3

5125 W 29th Avenue Unit: 6

The Neighborhood:
Denver

Learn More Denver

Work With Us

When buying and selling in Orange County, Mitchel is a name that will be remembered for honesty, trust, and reliability in and out of the real estate market.
Contact Us